Hamlet chicken processing plant fire

The Hamlet chicken processing plant fire was an industrial fire in Hamlet, North Carolina, at the Imperial Foods processing plant on September 3, 1991, resulting from a failure in a hydraulic line. 25 workers were killed and 55 injured in the fire, trapped behind locked fire doors. In 11 years of operation, the plant had never received a safety inspection.[1] Investigators believe a safety inspection might have prevented the disaster.[2]
A federal investigation was launched. Owner Emmett Roe received a 20-year prison sentence, of which he served only four years. The company received the highest fine in the history of North Carolina,[3] which was less than the federal minimum. As a result, the federal government took over enforcement of much of North Carolina's worker safety laws.[4] Survivors and victims' families accused the fire service and city of Hamlet of racism, leading to two monuments to the tragedy being erected. The plant was never reopened.
The fire was North Carolina's worst industrial disaster.[5] Higher fatalities occurred in the 1947 Texas City disaster, the 1911 Triangle Shirtwaist Factory fire, and the 1860 Pemberton Mill collapse.[6] Some mining disasters have been worse: 53 miners died in 1925 in North Carolina in the Coal Glen mine disaster.
Background
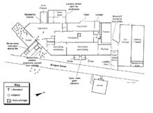
The Imperial Foods building was 11 years old, although the basic structure dated back to the early 20th century. The building had been used for food processing applications and had been an ice cream factory.[2] At the time of the fire, it included adjoining structures totaling 30,000 square feet (2,800 m2).[5] The factory was constructed with bricks and metalwork and was one story high.[2] The interior was a "maze of large rooms separated by moveable walls", and both workers and the product moved around the interior from process to process, going from front to rear.[5] Imperial's operators usually kept the doors of the chicken plant padlocked and the windows boarded, to prevent theft, vandalism or other criminal acts.[7] There had been no safety inspections by the state due to a lack of inspectors.[1] The poultry inspector visited the site daily and knew of the fire violations. One worker stated that much of the chicken meat was rotten,[7] and that the reason it was processed into chicken nuggets was to disguise the foul taste. He did not report these violations.[6][7] Some workers were made nervous by the locked doors but did not voice their concerns for fear of losing their jobs.[5]

The company had a poor safety record, though with no previous fatal accidents. It was cited in the 1980s for safety violations at its Moosic, Pennsylvania, plant. The violations included poorly marked or blocked emergency exits.[8] The offending factory had been closed by the time of the North Carolina fire.
The Hamlet plant had three previous fires, but no action was taken to prevent recurrence or to unlock the doors.[7] The building had fires before Imperial took over as well, although these, too, were non-fatal.[2] The Imperial plant at Cumming, Georgia, had two major fires, one of which, in 1989, caused $1.2 million worth of damage.[8] The Hamlet plant had no fire alarm system to warn workers farther back in the plant, and there were no sprinklers in the building.[7][9]
An extensive fire was considered unlikely because of a lack of flammable materials throughout the complex, other than packing materials in the rear. There were open spaces between rooms in place of doors to allow for easy access by forklift trucks. The only barriers were curtains of plastic strips between some to hold in refrigerated air. This allowed for rapid spread of smoke and heat in the deadly blaze. The building's previous use as an ice cream production facility meant that the walls and floor were hard, smooth surfaces, which limited the amount of material that was available to absorb heat and smoke during the fire.[2]
An inspection of the floorplan shows that 12 of the victims died of smoke inhalation and several more were injured when they ran into the freezer in a panic rather than to the front of the building.
Fire

There were 90 employees in the facility at the time of the fire, which began when a 25-foot (7.6 m) long deep fat fryer vat may have spontaneously ignited at around 8:30 AM.[1] This cooker's temperature was controlled by thermostat and was maintained at a constant 375 °F (190 °C), which was variable by design to 15 °F (8 °C) either way.[2] The fire spread rapidly, causing a panic so that some workers suffered trauma injuries during a rush to escape.[1] Large quantities of smoke were produced by a combination of burning soybean oil and chicken, and melting roof insulation. The smoke was later found to be hydrocarbon-charged and had the potential to disable someone within a few breaths.[2] Several gas lines embedded in the ceiling also caught fire and exploded.[3]
The majority of those who escaped unharmed were workers in the front of the building who left through the unlocked main entrance, but most workers were trapped by a curtain of smoke. Others tried to escape through the locked doors by kicking them down, but without success; most of the survivors from the rear of the building got out through a loading bay. The bay was initially blocked by a tractor-trailer, but three workers went into the rear of the truck and pounded on the walls until they were heard by rescuers who moved the vehicle.[5] Others escaped when several workers managed to break open a few of the doors, though for many this came too late.[3]

The injured were sent to several hospitals for treatment for their injuries. One of the dead worked for an outside company and was resupplying the on-site vending machines; no one realized he was inside the plant until the company he worked for reported his truck missing.[10]
Twenty-five people died and 54 suffered injuries or aftereffects such as burns, blindness, respiratory disease from smoke inhalation, neurological damage and post traumatic stress disorder.[1][7] Of the dead, 18 were female and 7 were male.[2] Many still suffer or died early from their injuries, and some are addicted to their medications or to alcohol.[3]
Emergency response
Emergency response was delayed because telephones inside the building could not be used. The plant owner's son drove to the fire station and informed them there that the factory was on fire but did not say that workers were still in the plant.[3] More than 100 medical and emergency service personnel went to the scene,[1] some of whom ran from a local hospital, and nearby towns provided emergency evacuation for the injured via four air ambulances from the local hospital to nearby burns units.[2]
The response came under heavy criticism. Fire Chief Fuller, in charge of the emergency response, refused help several times from the Dobbins Heights fire department, five minutes away from the plant. The Dobbins Heights Fire Department was composed of African-American volunteers and most of the workers were also black, and there were allegations of racial prejudice from the Fire Chief. Fuller has defended his decision, saying at the time he refused assistance he did not realize the doors were locked, adding "In a fire like this you need good, seasoned people." Witnesses have also said that there were only two oxygen tanks on site to help smoke-inhalation victims.[7]
Fuller was asked to evaluate the emergency response for investigators. He said he felt there were "more than adequate numbers of personnel and equipment given the layout of the incident site".[2]
Reactions

It was clear that the workers had been trapped by locked fire doors, which drew much criticism. A spokesman for the company said that "certain doors" in the plant were locked at "certain times" but did not say which doors. Clark Staten of the Emergency Response and Research Institute in Chicago said in response to the blaze: "If the initial reports can be believed, this is an intolerable set of circumstances that should result in criminal charges being placed against those responsible for having the fire doors locked ... Our past experience with fires and fire deaths shows that we must ensure an adequate number of open exits from any occupied building ... It's hard to believe, in today's day and age that any business owner or manager would be so insensitive to fire safety as to allow this sort of incident to happen."[1]
The Imperial processing facility in Cumming, Georgia, was shut down for 24 hours immediately after the fire when an inspection by the Occupational Safety and Health Administration found an inoperative sprinkler system, "improper" fire exits and no evacuation plan.[8] The inspection report stated that the plant posed an "imminent danger" to workers because it lacked an automatic fire extinguisher over the cooker similar to the one installed in the Hamlet plant, which failed to prevent the disaster, but did slow the ignition of oil in the vat.[2][11]
Investigation

An investigation was immediately launched by state authorities, joined one month later by federal investigators.[12] Investigators found indentations left on at least one door by people attempting to kick it down.[1] There were concentrations of bodies around fire exits[1] and inside a large walk-in freezer where panicked workers had sought shelter. Some sources thought they froze to death, in temperatures as low as −28 °F (−33 °C),[5] but the official report says they were killed by smoke infiltration around the improperly closed door. Twelve deaths occurred in the freezer. Five people survived there, but suffered injuries.[2] Timothy Bradly, North Carolina's Deputy Commissioner of Insurance, said that technically "There was not a single door in the plant that met the criteria of a fire exit."
The fire was caused by failure of a hydraulic line which powered a conveyor belt supplying the cooker vat. When the original line developed a leak, a worker originally replaced it with new line and with new connections. Later the line, which was too long and created a tripping hazard, was shortened, but in the process the worker replaced the new end connector with the old fitting.
The line was rated to 3,000 psi (20,700 kPa), while normal operating pressure never fluctuated higher than 1,500 psi (10,300 kPa). When the line with a customized connector was brought up to normal operating pressure, it separated from the connector at between 800 and 1,500 psi (5,500–10,300 kPa). Hydraulic fluid spattered onto the heating lines for the cooker and immediately vaporized. This vapor then went directly into the flame of the gas-fired cooker. The vapor had a relatively low flash point and erupted into a fireball. The ruptured hydraulic line then pumped 50 to 55 US gallons (40–45 imp. gal/190–210 L) of hydraulic fluid into the fire before electrical failure shut it down.[2]
A state-of-the-art automatic carbon dioxide fire extinguisher designed to cope with such fires had been installed over the vat after a non-fatal fire in 1983 at the fire department's request. This prevented the oil itself from igniting until the later stages of the fire.[5][2]
State authorities were also blamed. The state labor commissioner, John C. Brooks, blamed his department's failure to inspect the plant on shortage of money and staff, and blamed the federal government for not enforcing stricter standards.[13]
Recommendations
The final report made ten recommendations. A summary:[2]
- Life safety codes must be enforced. Proper enforcement of existing regulations must occur in future.
- Cooking areas must be separately partitioned from other employee work areas. Cooking operations in food processing plants carry a high risk of fire, and so must be separated from the rest of the building, and from as many workers as possible.
- Building exits in wet-type operations should have double emergency lighting, one positioned above the door and one low to the floor. Because the work areas were cooled to comply with food preservation laws, humidity was high, so-called "wet conditions". These conditions cause particularly heavy smoke, obscuring much high-level emergency lighting.
- High-pressure equipment maintenance and repairs must be limited to factory-trained personnel and specifications. Maintenance personnel working on high-pressure machinery, such as the maintenance employee who conducted the faulty modification to the hydraulic hose in the plant, must be trained by personnel from the factory that supplied the equipment.
- High-pressure equipment in probable incident areas should have built-in catastrophic shutdown valves. This would reduce the probability of accidents in high-risk areas by shutting down machinery should a fault occur.
- Negative air flow systems in these facilities could enhance safety by being modified to also accomplish smoke evacuation. Many similar plants have this equipment, which is designed to quickly purge the air of toxic fumes in the event of accidental release of ammonia. The report recommends modifying the equipment to also pull heavy smoke away from lower areas.
- State and federal inspectors from various departments should be cross-trained. Had the food inspector reported the problems he saw, the disaster may have been prevented despite the lack of other safety inspections. Such personnel should be trained to recognize major problems and to report them to the relevant authorities.
- Establish a “worry free” line of communications for industry employees. Workers inside the Hamlet plant were afraid to say anything about safety conditions for fear of being fired. To overcome such problems, states should establish systems of anonymous reporting of problems by workers.
- The number of OSHA safety inspectors must be increased. The team of inspectors was hugely overburdened at the time of the accident, and the report says that an increase in the number of inspectors is required to solve the problem.
- Emergency exit drills must be incorporated into industry policies. This would allow quick evacuation of premises like the Hamlet chicken plant.

Criminal prosecution
Prosecution of the owners
Emmett J. Roe, owner of Imperial Foods Products Inc.; his son Brad, who was operations manager for the company; and plant manager James N. Hair surrendered on March 13, 1992, and were charged with non-negligent manslaughter.[14] There was no trial. On September 15, 1992, owner Emmett Roe pleaded guilty to 25 counts of involuntary manslaughter. No one else was found guilty. Emmett Roe had personally ordered the doors to be locked from the outside.[5][15] He received a prison sentence of 19 years and 11 months.[7][15][16] The sentence was unpopular among many of the workers and their families who point out that it amounts to less than a year for each dead person.[15] Roe became eligible for parole in March 1994, and was released just under four years into his sentence.[3][15]
Prosecution of Imperial Foods
Imperial Foods was fined US$808,150 for offenses such as the locked doors and inadequate emergency lighting. The amount is smaller than potential federal penalties as the state administers its own safety program.[5] The fine was still the highest in the history of North Carolina.[3]
References as a textbook example
The disaster and subsequent prosecution have been used in books such as Essential Criminology (1998, Henry, Stuart; Mark M. Lanier) and Political Crime in Contemporary America: a Critical Approach (1993, Aulette, J.R. & Michaelowski, R.), the latter having an entire chapter devoted to the incident entitled "Fire in Hamlet: a Case Study of State-Corporate Crime".[17]
Aftermath
The factory was permanently closed, with the loss of 215 jobs.[15] Within two years of the accident insurance companies and the North Carolina business lobby together introduced legislation limiting the compensation available to injured workers and relatives of killed workers.[7] Insurance companies had originally agreed to pay $16.1 million to the injured and the families of the deceased.[18] Some of the workers became activists as a result, to fight what they see as "bureaucratic injustice". They had originally hired John Coale, an attorney who had worked on the Bhopal disaster, but he could not legally practice in North Carolina.[7]
On January 9, 1992, U.S. Labor Secretary Lynn Martin told North Carolina state officials they had a deadline of 90 days to improve enforcement of job safety and health regulations or federal agencies would take over.[19] The North Carolina General Assembly passed 14 new worker safety laws as a result,[3] including provision of a system whereby workers could report violations without fear of job loss. The inspector corps was increased from 60 to 114.[6]
Two separate monuments were erected due to a dispute. Many of the workers and their families wanted Jesse Jackson to speak in the city's memorial effort. Mayor Abbie Covington did not want Jackson involved and was backed up by many other local authority figures. One group of the survivors held their own service which included Jackson. Both services unveiled near-identical monuments, which are situated just 50 yards (46 m) from each other.[3]
Because of the town's small size, many firefighters knew some or all of the victims, and have suffered psychological problems. More than fifty attended counseling sessions afterward.[2] A memorial service was held in 2000, though by then many survivors had died, mostly as a result of complications from their injuries. The burned-out shell of the factory was bulldozed by the state in 2001 after it was declared "a public health nuisance" because of the psychological effects it had on the victims, many of whom still lived within sight of the structure.[3] A small memorial park sits on site today, with no trace left of the original strucure.
References in popular culture
Jello Biafra and Mojo Nixon wrote a song about this incident called "Hamlet Chicken Plant Disaster". It is included in their album Prairie Home Invasion. The disaster is the subject of a documentary film titled Hamlet: The Untold Tragedy. A 20-minute version titled Hamlet: Out of the Ashes is currently on tour.[7] A book on the subject, A Southern Tragedy, in Crimson and Yellow, was written by Lawrence Naumoff. Although it follows a fictional character, much of it is based on the fire.[20] The tragedy is also the subject of Cloud Journal (2008), a book of elegiac sonnets by North Carolina poet David Rigsbee. An earlier version by the same author appeared as Sonnets to Hamlet in 2004. [21]
See also
- Iroquois Theatre Fire : a 1903 fire that prompted the fire code to improve safety.
- Collinwood School Fire: a 1908 fire that resulted in efforts to change doors on public buildings in America so that they opened outward, and mandatory "panic bar" latches on all doors in schools.
- Triangle Shirtwaist Factory fire: a 1911 factory fire which resulted in extensive changes to safety and workers’ compensation laws.
- Cocoanut Grove fire: a 1942 fire resulting in bans on flammable decorations and new safety standards for fire doors.
- Our Lady of the Angels School Fire: a 1958 fire resulting in worldwide fire safety improvements in many buildings, particularly schools.
- Beverly Hills Supper Club fire: a 1977 fire which led to an overhaul of fire code enforcement.
References
- 1 2 3 4 5 6 7 8 9 "Fire Violations Kill Twenty-Five In Chicken Plant". emergency.com. Archived from the original on December 5, 2006. Retrieved 2011-03-28.
- 1 2 3 4 5 6 7 8 9 10 11 12 13 14 15 16 "Chicken Processing Plant Fires: Hamlet, North Carolina (September 3, 1991) and North Little Rock, Arkansas (June 7, 1991)" (PDF). United States Fire Administration report. Retrieved 2007-02-06.
- 1 2 3 4 5 6 7 8 9 10 Haygood, Wil (2002-11-10). "Still Burning". The Washington Post. Archived from the original on 2006-12-08. Retrieved 2009-09-13.
- ↑ http://articles.latimes.com/1991-10-24/news/mn-427_1_worker-safety-laws
- 1 2 3 4 5 6 7 8 9 Paul Nowell, Fred Bayless,. "Describe the working conditions in factories in the late 19th century - Imperial Foods Company Reading". eduref.org - Consisting of two articles originally published by the Associated Press on September 5, 1991 and two by Time magazine. Retrieved 2007-01-31.
- 1 2 3 Jonsson, Patrik (2003-02-03). "Lessons from a factory fire". The Christian Science Monitor. Retrieved 2007-01-30.
- 1 2 3 4 5 6 7 8 9 10 11 "Hamlet: the Untold Tragedy". Organica News. 1995. Archived from the original on January 7, 2007. Retrieved 2007-01-29.
- 1 2 3 "Company in Fatal Fire Cited in Third State". The New York Times. 1991-09-16. Retrieved 2007-02-02.
- ↑ "Chicken Plant Operators Indicted". The New York Times. 1992-10-03. Retrieved 2007-02-02.
- ↑ Elements of an Emergency Action Plan - AFSCME - Obtained February 6, 2007.
- ↑ "U.S. Tells Poultry Processor Its Plant in Georgia Poses Risks". The New York Times. 1991-09-06. Retrieved 2007-02-02.
- ↑ Smothers, Ronald (1991-10-24). "U.S. Agents to Join Carolina Safety Inspectors". The New York Times. Retrieved 2007-02-02.
- ↑ "3 Surrender in Plant Fire". The New York Times. 1992-03-13. Retrieved 2007-01-31.
- 1 2 3 4 5 "Owner Of Hamlet Plant Is Up For Parole". The Virginia Pilot. 1995-01-26. Retrieved 2007-01-31.
- ↑ "Meat-Plant Owner Pleads Guilty In a Blaze That Killed 25 People". The New York Times. 1992-09-15. Retrieved 2007-01-31.
- ↑ Aulette, J.R. & Michaelowski, R. (1993). "Fire in Hamlet: a Case Study of State-Corporate Crime" in Political Crime in Contemporary America: a Critical Approach, (ed. Tunnell, K). New York: Garland (pp.171–206).
- ↑ "Victims of Poultry-Plant Fire to Get $16.1 Million". The New York Times. 1992-11-08. Retrieved 2007-01-31.
- ↑ Kilborn, Peter T. (1992-01-09). "North Carolina Is Told to Improve Safety Role". The New York Times. Retrieved 2007-02-02.
- ↑ "Unlocking the Door". Endeavors Magazine. Archived from the original on December 30, 2006. Retrieved 2007-01-31.
- ↑ Cloud Journal, Turning Point Books 2008
Coordinates: 34°52′53″N 79°42′03″W / 34.88139°N 79.70083°W